您当前所在位置:首页>丰都县人民政府三合街道办事处>政务公开>法定主动公开内容>其他法定信息
| [ 索引号 ] | 1150023C711625445B/2026-00043 | [ 发文字号 ] | 无 |
| [ 主题分类 ] | 城乡建设(城乡管理) | [ 体裁分类 ] | 公告公示 |
| [ 发布机构 ] | 丰都县三合街道办事处 | [ 有效性 ] | |
| [ 成文日期 ] | 2026-04-01 | [ 发布日期 ] | 2026-04-01 |
| [ 索引号 ] | 1150023C711625445B/2026-00043 |
| [ 发文字号 ] | 无 |
| [ 主题分类 ] | 城乡建设(城乡管理) |
| [ 体裁分类 ] | 公告公示 |
| [ 发布机构 ] | 丰都县三合街道办事处 |
| [ 有效性 ] | |
| [ 成文日期 ] | 2026-04-01 |
| [ 发布日期 ] | 2026-04-01 |
丰都县三合街道商业一路240号1栋1单元增设电梯项目公示
为规范既有住宅增设电梯管理,充分保障相关业主及利害关系人的知情权、参与权和异议权,广泛征询公众意见建议,现将丰都县三合街道商业一路240号1栋1单元增设电梯项目相关情况予以公示,具体内容如下:
一、项目基本信息
申请主体:丰都县三合街道商业一路240号1栋1单元业主
项目实施地点:丰都县三合街道商业一路240号1栋1单元
电梯承建单位:重庆恩立电梯工程有限公司(联系电话:17783121782)
二、公示资料范围
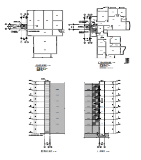
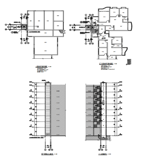
本次同步公示的增设电梯相关资料包括:业主书面同意意见、增设电梯示意图、施工图、房屋结构安全论证报告、消防技术标准说明、分摊协议、效果图等资料(见附件)。项目完整纸质资料可前往三合街道办事处311办公室现场查阅。
三、公示期限及方式
2026年4月1日至2026年4月8日。
公示方式为线上(政府官网)、线下(小区公告栏及单元入口处)同步公示。
四、意见反馈相关要求
本次公示为该单元增设电梯项目的公开意见征询环节,若相关单位或个人对本项目存在异议、有合理意见建议,需按照以下要求规范反馈:
反馈材料需注明反馈人完整身份信息(单位反馈需提供单位名称、统一社会信用代码、法定代表人身份证复印件;个人反馈需提供本人姓名及身份证复印件),同时附上有效联系电话;请于2026年4月8日18:00前,通过电话沟通或直接提交书面材料的方式,反馈至三合街道办事处规建环保岗(311办公室),联系人:熊海攀,联系电话:18315126296、023-70606981。
公示期届满后,未按要求提交书面意见或有效反馈信息的,视为自动放弃异议权利,认定为对本次增设电梯项目无不同意见,公示单位将依法依规推进该项目后续相关审批及实施工作。
丰都县人民政府三合街道办事处
2026年4月1日
附件
商业一路240号1栋1单元增设电梯公示资料
|
公示公告 |
业主书面同意意见书 |
增设电梯示意图 |
增设电梯建筑图、结构(封面) | |
|
|
|
| |
|
房屋结构安全论证报告(封面) |
消防技术标准说明(封面) |
分担协议 |
现场效果图 |
拟增设电梯平、立、剖图 |
|
|
|
|
|
|